Umnutzung Schule in Herberge 100Haus in Wolgast
Test Admin2024-07-11T10:42:10+02:00Der um 1900 errichtete Backsteinbau wurde bis Anfang des 21. Jahrhunderts als Schule genutzt. Das Einzeldenkmal steht an prädestinierter Stelle in Wolgast an der Zufahrtstraße zur Insel Usedom.
Die neue Nutzung ist ein Hostel für Kinder-, Jugend- und Gruppenreisen.
Partizipatorischer Entwurfsansatz:
Die Entwurfsplanung wurde in partizipatorischer Weise durchgeführt. In Workshops wurden mit Jugendlichen des Wolgaster Runge Gymnasiums Ideen zur Umgestaltung des Gebäudes gefunden, um den Entwurf direkt mit der Zielgruppe zu entwickeln. Die Schüler haben zunächst das Gebäude mit ihrem eigenen Körper vermessen, um ein Gefühl für die Dimensionen des Gebäudes zu bekommen. Darauf folgend beschäftigten sich die Schüler ein Schulhalbjahr mit dem Thema Architektur und entwarfen in verschiedenen Aufgabenstellungen Ideen für die Themenzimmer des Hostels.
Das Thema der „Traumschule _ In dieser Schule darfst Du Lernen, was Du willst“ war hierbei als übergreifender Leitgedanke maßgeblich.
Die Entwürfe und Ideen der Schüler wurden aufgegriffen und sind maßstabsgebend für die Thematik der Themenzimmer.
Baumaßnahme:
Im Zuge der Sanierungsmaßnahmen wurde das Gebäude in seiner Raumstruktur der neuen Nutzung angepasst. Um einen möglichst geringen Eingriff in die historische Bausubstanz zu tätigen, erfolgte der Ausbau weitestgehend im Bestand, und neue Wände wurden in Leichtbauweise hergestellt. Zu erhaltende Bodenbeläge und Putze blieben im Bestand, bzw. wurden, wo nötig, gemäß historischer Bausubstanz erneuert.
Im Kellerbereich wurden zusätzlich zu den vorhandenen Sanitäranlagen Gemeinschaftsduschen eingebaut. Die Wände wurden mittels Injektionsverfahren gegen aufsteigende Feuchtigkeit geschützt. In den oberen Geschossen wurden Trockenbauwände zur Abteilung der Schlafräume eingezogen. Darüber hinaus wurden in jedem Geschoss zwei kleinere Sanitärbereiche eingebaut. Ein behindertengerechtes Bad wurde im Erdgeschoss eingebaut, der Einbau eines Plattformliftes ermöglicht den barrierefreien Zugang vom Hof in das Gebäude.
In den oberen beiden Geschossen werden ebenfalls Schlafräume abgetrennt. Die großen Schlafsäle bekommen eine zweite Schlafebene, um die hohen Räume optimal auszunutzen und Rückzugsmöglichkeiten zu schaffen. Im Dachgeschoss wurden die bereits ausgebauten Räume als Schlaf- bzw. Sanitärräume umgebaut. Hier wurde die Dämmung erneuert und die Fenster zugunsten von Ausstiegsfenstern zur Rettung durch die Feuerwehr ausgetauscht. Im gesamten Gebäude wurde die Sanitär- und Elektroinstallation erneuert. Die Sanierung erfolgte denkmalgerecht und schonend, um das historische Gebäude in seiner ursprünglichen Form zu belassen.
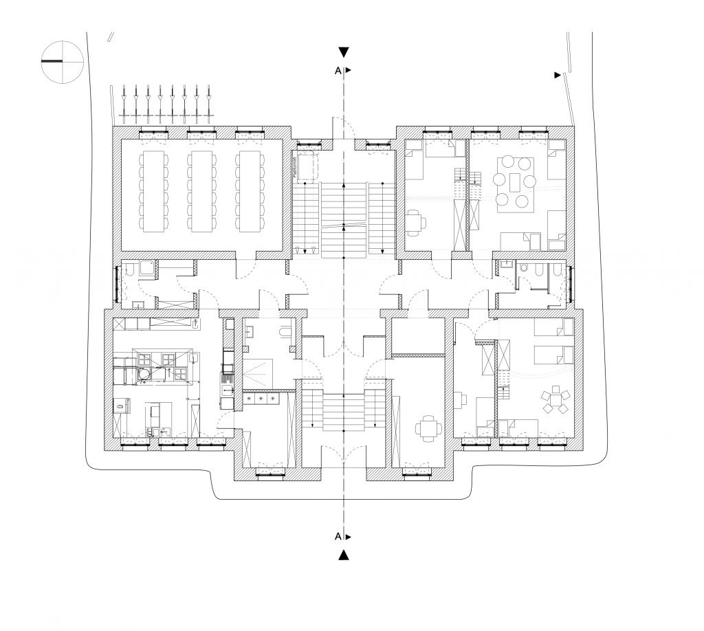
Nutzung:
Im Kellergeschoss befinden sich die Gemeinschaftsduschen sowie ein Kreativraum, der „BunkeBunker“, zum Basteln, Werken und Musizieren.
Im Erdgeschoss befindet sich der Haupteingangsbereich und die Selbstversorgerküche, die „SchüKü“. Ein angrenzender Speisesaal, der „Klassenmampf“, bietet Platz für Gäste und Gruppen. Darüber hinaus befinden sich im Erdgeschoss der Personalraum, die „liebe“, sowie die Themenschlafzimmer „Improtheater“, „Ferne Kulturen“, „Dichterschule“ und Unterwasserwissenschaft“.
Das Obergeschoss beherbergt acht weitere Themenschlafräume, wie beispielsweise die „Astronomie“, die „Tontechnik“ oder die „Landwirtschaft“.
Im Dachgeschoss sind drei Themenschlafzimmer verortet, hier kann im „Gamedesign“, in der „Flugschule“ oder in der „Meditation“ übernachtet werden. Von Einzelzimmer bis zum 6-Bett Schlafsaal sind die Raumgrößen den Bedürfnissen der verschiedenen Nutzergruppen angepasst.
Ort: Unterwallstraße 18a, 17438 Wolgast
Leistungszeit: 2016 – 2018
BGF: 1520 m²
Planung: Cubus Plan GmbH
